
無線裂縫計
無線裂縫計用于測量表面縫的開合度,例如:建筑、橋梁、管道、大壩等混凝土的施工縫,配用不同的附件,也可測量土體的張拉縫與巖石和混凝土的裂縫。儀器常用于表面式安裝。
全國銷售熱線:
029-88621754
一、產品介紹
無線裂縫計用于測量表面縫的開合度,例如:建筑、橋梁、管道、大壩等混凝土的施工縫,配用不同的附件,也可測量土體的張拉縫與巖石和混凝土的裂縫。儀器常用于表面式安裝。
儀器包括一個 LVDT 高精度傳感器和一個采集單元,整個設備采用一體式結構,方便現場安裝,本產品是一款低功耗、具有無線通訊功能的智能儀表,以先進的工業級 MCU 為核心,高品質的傳感器為采集前端,結合物聯網 CAT1數據模塊,及中國電信 4G網絡,實現現場儀表數據到云端的無線傳輸。
通過采集位移,通過按鍵化校準,實現裂縫計無線遠傳,可通過上下限報警實現數據平臺報警。抗雷擊、抗沖擊;表體安全防爆:體積小、外形美觀、性價比高:高精度、高穩定性、高可靠性。
二、產品特點
4G 網絡適用地域廣
IP68 防水外殼,無需開蓋即可設置采集頻率
內置超大尺寸顯示屏(42*30),可調試使用。
天線形式可選擇:外置和一體,對于信號弱的地方可選擇外置天線。
內置低功耗電路和 9900mAh 大容量鋰電池電池。
定時上報和觸發上報,可選配 GPS 定位模塊,實現精準定位。
閾值上、下限報警:及電池容量報警提示功能。
聯網自動校時,斷網自動重連,帶數據緩存,失敗數據重發功能。
支持按鍵操作,亦可使用紅外遙控器本地操作儀表,避免現場錯誤操作。
常見設置均可通過服務器發送設置參數,無需現場設置參數。
具有防震、防潮功能,適應野外環境。
具有完善的故障自檢功能。
三、產品參數


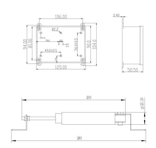
四、尺寸圖

如果您需要幫助,可以立即撥打我們的服務熱線!
產品中心
地質監測儀表
活塞式壓力計/壓力源
- GM系列活塞式壓力計
- 臺式液體壓力源
- 臺式氣體壓力源
- 氣體活塞壓力計
- 活塞式壓力真空計
- YS改良型活塞壓力計
- 活塞式壓力計
- 電動微壓標準器
- 氣體減壓器校驗儀
- 氧氣表壓力表兩用校驗器
- 壓力表校驗器校驗儀
- 活塞壓力計數字顯示系統
- 空盒氣壓表檢定裝置
- 電動微壓源
- 全自動液體壓力源
- 管道試壓壓力天平
- 浮球壓力計
- 全自動活塞壓力計
- 便攜式液體壓力源
- 電動壓力源
液位儀表
- 80G超高溫雷達物位計
- 電廠專用四氟高頻雷達物位計
- 側裝磁翻板液位計
- 雷達水位計
- 26G油罐專用雷達液位計
- 26G強腐蝕雷達液位計
- 26G高頻雷達物位計
- 80G調頻雷達液位計
- 80G桿式射頻導納物位開關
- 液位顯示控制箱
- 投入式液位變送器
- 80G纜式射頻導納物位開關
- 桿式導波雷達
- 激光雷達料位計
- 連桿浮球液位計
- 靜壓式水準儀
- 河道浮子液位計
- 液位變送器
- 26G粉塵雷達物位計
- 26G高溫雷達物位計
密度計
- GJM-SHJ型石灰漿液在線密度計
- GJM-JJ型酒精在線密度計
- GJM-85管道密度計
- 差壓式密度計
- 分體式密度傳感器
- 濃度計
- 衛生型密度計
- 耐高溫音叉密度計
- 管道式音叉密度計
- 直管密度計
- 便捷式音叉密度計
- GJM-KG型(卡箍安裝形式)音叉式濃度計
- GJM-QFS氫氟酸專用濃度計
- GJM-YS鹽酸專用濃度計
- GJM-LS硫酸專用濃度計
- GJM-YS型鹽酸在線密度計
- GJM-KG型音叉式密度計(卡箍安裝形式)
- GJM-AS型氨水在線密度計
- GJM-XS硝酸專用濃度計
- GJM-NS型尿素濃度計
物聯網無線溫壓變送器
- Cat1無線溫度變送器
- loRa壓力變送器(高溫型)
- NB無線液位變送器
- NB無線溫度變送器
- NB無線壓力變送器
- 電解液無線變送器
- CAT1無線溫濕度變送器
- CAT1無線壓力變送器
- GNSS自動檢測站
- 無線雷達水位計
- 無線流量計
- 無線磁致伸縮液位計
- 無線浮球液位計
- 無線差壓變送器
- 無線溫壓變送器
- 油田專用壓力變送器
高精度壓力表
- 防爆數字壓力表
- 數字壓力控制器
- 計量級數字壓力表
- 精密數字壓力表
- 計量級精密壓力表
- 臺式數字壓力表
- 特殊精密壓力表
- 各類普通壓力表
- 智能數字壓力校驗儀
- 高精度大氣壓力計
- 氣密性測試儀
- 高精度壓力模塊
- 存儲型數字壓力表
流量儀表
- 智能一體式渦街流量計
- 溫壓補償一體化渦街流量計
- 插入式渦街流量計
- 智能氣體渦輪流量計
- MF4003/4008微小氣體流量流量計
- 智能一體式電磁流量計
- 羅茨流量計
- 圓齒輪流量計
- 智能氣體旋進旋渦流量計
- 一體式孔板流量計
- 液晶顯示金屬管轉子流量計
- 就地顯示金屬管轉子流量計
- MF5706/08/12氣體質量流量計
- 手持式超聲波流量計
- 固定外夾式超聲波流量計
- 智能液體渦輪流量計
- 插入式電磁流量計
- 分體式電磁流量計
壓力變送器
熱工校驗儀
- 全自動溫度檢定系統
- 便攜式全自動壓力檢定系統
- 全自動壓力檢定系統
- 高精度溫度顯示儀
- 干體式校驗爐
- 溫度檢定爐
- 恒溫水槽
- 恒溫油槽
- 便攜式熱電偶校驗儀
- 便攜式熱電阻校準儀
- 信號過程校驗儀
- 壓力表檢定附件產品

